Skip to content
Property Description

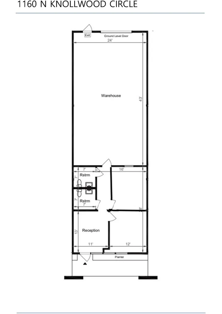
Excellent opportunity to own a 1,787 SF industrial condominium in the professionally managed Woodland Business Park in West Anaheim. The unit is configured as warehouse with office space and features a ground-level roll-up door. Conveniently located just off the 5 and 91 Freeways, offering excellent regional accessibility. The well-maintained multi-tenant business park provides ample parking and is ideally situated near Magnolia Ave and La Palma Ave. Suitable for owner-users, small businesses, or investors. Sold As-Is. Buyer to verify all information.

Features
: None
Address Map
1160 N Knollwood Circle, Anaheim, California 92801
US
CA
Orange
Anaheim
92801
Yes
Knollwood
1160
Circle
W118° 1' 18.8''
N33° 50' 56.4''
Magnolia Ave and La Palma Ave
699 - Not Defined
N
Additional Information
: Public
1
2025-12-11
31
: Street Level
1
53437
Listing Information
SR207071313
F3747001
Cash,Cash to New Loan
Active
2026-02-13T13:41:21Z
CRMLS
: Standard
2025-12-11T17:21:41Z

Commercial Sale For Sale

1160 N Knollwood Circle, Anaheim, California 92801

3.75 Acre
$1,199,900
Listing ID #SR25274899
Basic Details
Property Type : Commercial Sale
Listing Type : For Sale
Listing ID : SR25274899
Price : $1,199,900
Lot Area : 3.75 Acre
Office Name : Newline Realty
Agent Name : Kenneth Park
Property Sub Type : Industrial
Listing Status : Active
Agent info
All View Realty
Contact Agent
2551569_AVR_Logo_Revamp_7_031025